This website uses cookies to enhance your user experience. By using this website you are consenting to this.
148,000 sq ft
(prelet opportunity)
320,000 sq ft
(prelet opportunity)
295,000 sq ft
(prelet opportunity)
| Floor | Use | sq m | sq ft |
| Tenth floor | Office | 1,016 sq m | 10,941 sq ft |
| Ninth floor | Office | 1,016 sq m | 10,941 sq ft |
| Eighth floor | Office | 1,016 sq m | 10,941 sq ft |
| Seventh floor | Office | 1,016 sq m | 10,941 sq ft |
| Sixth floor | Office | 1,016 sq m | 10,941 sq ft |
| Fifth floor | Office | 1,016 sq m | 10,941 sq ft |
| Fourth floor | Office | 1,016 sq m | 10,941 sq ft |
| Third floor | Office | 1,016 sq m | 10,941 sq ft |
| Second floor | Office | 1,016 sq m | 10,941 sq ft |
| First floor (Terrace) |
Office | 1,016 sq m | 10,941 sq ft |
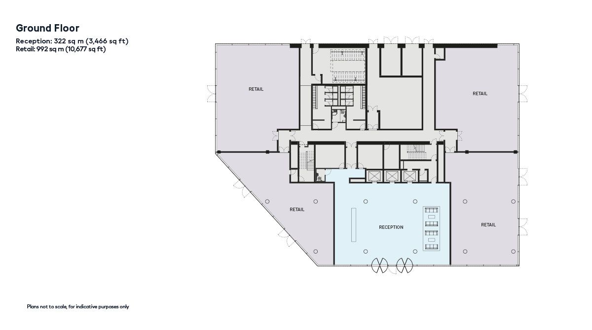
| Ground floor | Reception | 322 sq m | 3,466 sq ft |
| Total available | Office | 10,486 sq m | 112,874 sq ft |
| Ground floor | Retail | 992 sq m | 10,677 sq ft |
WP3 offers 320,000 sq ft of offices over ground and eight upper floors, with a terrace off the eighth floor. The building also includes five ground floor retail or food and beverage units.
| Floor | Use | sq m | sq ft |
| Eighth floor (Terrace) |
Office | 2,322 sq m | 25,000 sq ft |
| Seventh floor | Office | 3,345 sq m | 36,000 sq ft |
| Sixth floor | Office | 3,345 sq m | 36,000 sq ft |
| Fifth floor | Office | 3,069 sq m | 33,030 sq ft |
| Fourth floor | Office | 3,069 sq m | 33,030 sq ft |
| Third floor | Office | 3,069 sq m | 33,030 sq ft |
| Second floor | Office | 3,069 sq m | 33,030 sq ft |
| First floor | Office | 2,845 sq m | 30,620 sq ft |
| Ground floor | Reception | 501 sq m | 5,395 sq ft |
| Total available | Office | 24,131 sq m | 259,740 sq ft |
| Ground floor | Retail | 1,192 sq m | 12,835 sq ft |
Offering 295,000 sq ft of office accommodation over ground and seven upper floors, with a terrace off the seventh floor. The ground floor offers an expansive office reception and four retail or food and beverage units.
| Floor | Use | sq m | sq ft |
| Seventh floor (Terrace) |
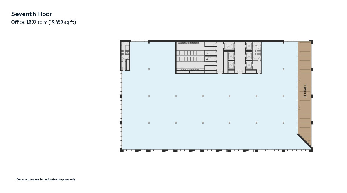
Office | 1,807 sq m | 19,450 sq ft |
| Sixth floor | Office | 1,960 sq m | 21,100 sq ft |
| Fifth floor | Office | 1,960 sq m | 21,100 sq ft |
| Fourth floor | Office | 1,960 sq m | 21,100 sq ft |
| Third floor | Office | 1,960 sq m | 21,100 sq ft |
| Second floor | Office | 1,960 sq m | 21,100 sq ft |
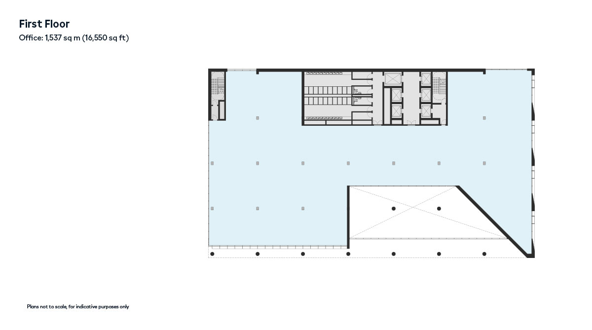
| First floor | Office | 1,537 sq m | 16,550 sq ft |
| Ground floor | Office | 404 sq m | 4,350 sq ft |
| Ground floor | Reception | 413 sq m | 4,450 sq ft |
| Total available | Office | 13,550 sq m | 145,850 sq ft |
| Ground floor | Retail | 441 sq m | 4,750 sq ft |